【相聚云端 精彩毕设】毕业设计(论文)中期检查案例分享 BBV体育_BBV(中国)第十六期
——两模块铰接式转向架方案设计及动力学计算
2020年春季学期,一场突如其来的疫情,阻挡了学生们返校的脚步,影响了2020届毕业生毕业设计(论文)进展。为做好毕业设计(论文)指导工作,学院多次召开线上会议,研讨毕设线上指导工作,制定《BBV体育_BBV(中国)2020年春季学期防疫阶段本科毕业设计实施方案》、《BBV体育_BBV(中国)2020年春季学期防疫阶段本科毕业设计相关要求》、《BBV体育_BBV(中国)关于开展2020届本科生毕业设计(论文)中期检查方案》。毕设指导教师积极完成毕设学生情况梳理,并根据学生实际情况进行分类指导,利用“云端”开展线上毕业设计(论文)指导工作,在疫情期间将毕业设计(论文)进展所受影响尽力减到最小,保证毕业设计(论文)质量不降低。毕业设计中期检查工作中,同学们精彩的答辩、在家自制的实物让我们对他们的毕业设计充满了信心,就让我们一睹为快吧:

学生姓名:彭 璨
班 级:车辆2016-04班
指导老师:黄运华
毕设题目:两模块铰接式转向架方案设计及动力学计算


一、毕业设计概述
背景(市场需求、现有介绍):随着社会经济的快速发展和城市化进程的加快,城市交通正面临巨大压力,现有的交通系统已经日渐成为经济发展的瓶颈。城市轨道车辆相比于普通的公路运输,能够很好地起到解决交通拥堵、保护环境、提高安全性和节约能源的作用。为了更大的发 挥轨道交通在城市交通运输方面的优越性, 促进城市轨道交通不断发展,铰接式轨道 交通车辆作为一种新型的轨道交通车辆型式, 在技术上有其独到之处。铰接式列车具 有转向架数量少、可以充分利用轴重、缩短车辆之间的连接距离、提高每延米轨道载重,增强列车的整体性和提高列车安全性等优点,因而也具有较好的应用前景。
现有的铰接式转向架一般可以分为两类:一类采用摇枕的形式,将铰接装置固连在摇枕上,其中,铰接装置又可以分为转盘式和球心盘式,铰接转盘是在前后车体上分别安装转盘与安装在转向架摇枕上的转盘凹槽相连接使车体的转盘可以与摇枕上的 转盘相对转动,球心盘是将车体与转向架摇枕上的转盘进行球铰使车辆与转向架可以相对转动。另一类采用无摇枕的形式,根据空气弹簧的个数不同可以分为两点支撑和四点支撑,四点支撑相比于两点支撑能够更好地控制车体的点头运动从而保证良好的动力学性能并消除铰接装置的垂向载荷。除了铰接装置以外,铰接式转向架的主体结构组成与普通客车转向架类似,但铰接式转向架由于是用于城市轨道车辆,其体积更小,自重更轻,结构也更加紧凑可靠。可以在城轨车辆上广泛使用。
学生应完成的任务

二、已完成工作
1.外文文献
翻译外文文献:总计完成4231字,共15页的翻译工作
Method for obtaining the modal properties of articulated trains equipped with independently rotating wheels

2.总体方案设计
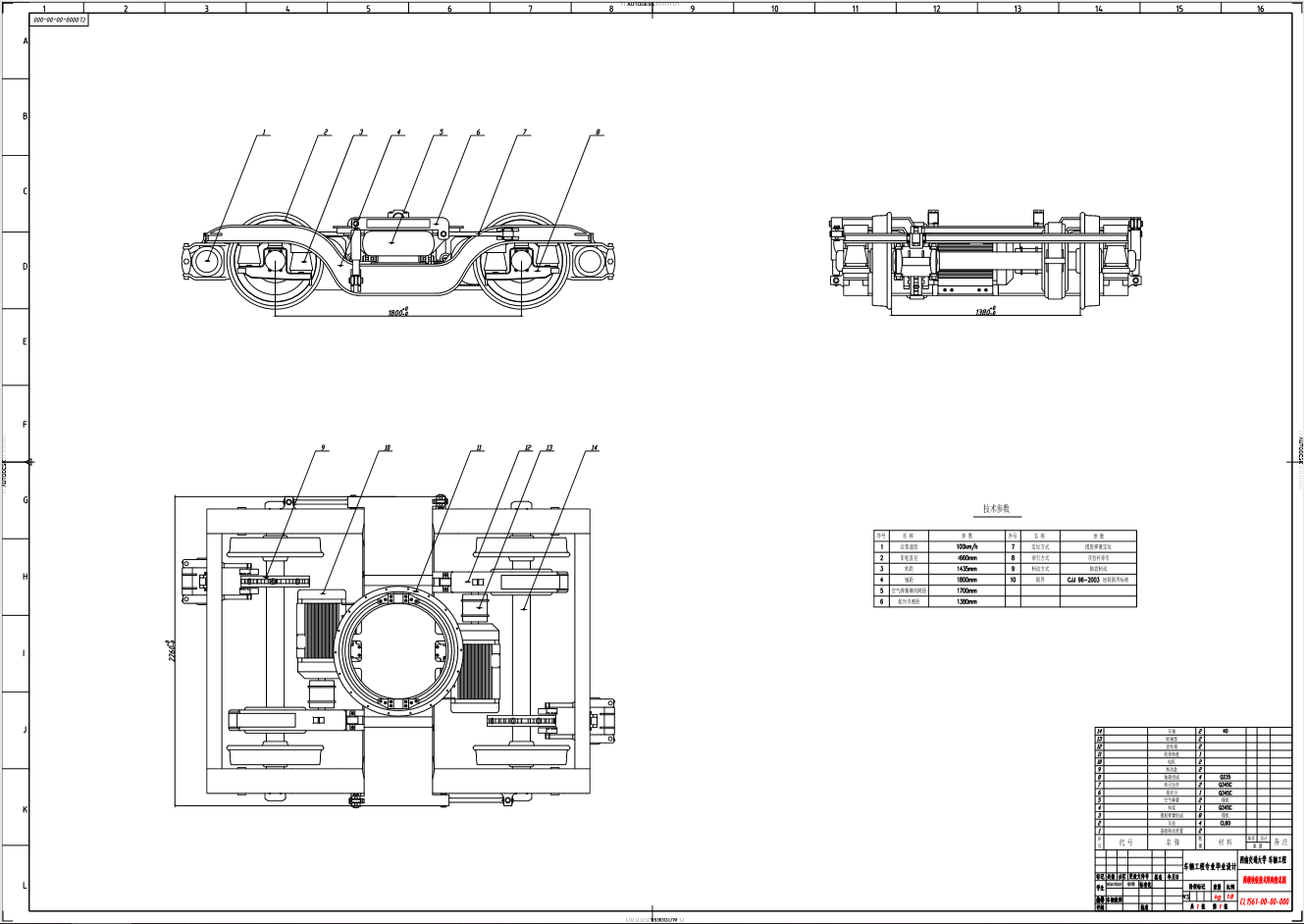
使用SOILDWORKS完成两模块铰接式转向架的零件建模和总体模型装配。
①基础制动装置:采用轴盘制动,8英寸制动缸体积小自重轻。

②轴箱悬挂装置:采用橡胶弹簧和橡胶堆定位。结构简单成本低,能够保证设计时速100km/h有轨电车的一系悬挂要求。
③铰接装置:采用铰接转盘形式,前后转向架用两转盘形式各与一个车体连接,中间转向架用三转盘形式与两个车体连接。
④牵引装置:采用两个在侧梁两侧斜对称分布的牵引拉杆将动力钻传递到车体。
⑤二系悬挂:采用两个在侧梁上对称分布的空气弹簧、采用两个在侧梁两侧斜对称分布的垂向减振器和两个在横梁前后斜对称分布的两个横向减振器组成。

⑥构架:采用焊接式H型构架,U型侧梁。满足转向架轻量化和一定的有轨电车低地板要求。
3.工程图
由SOILDWORKS导出DWG文件,在AUTOCAD中完成工程图的修改并导出PDF图纸。

4.动力学模型
建立两模块铰接式有轨电车的动力学模型。
计算临界速度约为330km/h,满足使用需要。

计算脱轨系数,其中最大脱轨系数不超过0.35,满足实际使用需求。
5.指导纪要
毕设小组每周与黄老师线上交流两次,解决毕设中遇到的问题。共完成4753字的指导纪要的记录。

三、下阶段的工作安排:
1.完成动力学建模以及仿真。
目前动力学模型已经将整车和转向架的部分建立完成。 主要的问题是建立好车体与转向架转盘之间的铰接关系和力源的设置,由于之前的参 数是按照指导老师所给的动力学数据参数来计算的,完成所有建模工作以后,需要根 据实际情况将部分参数修改成自己所建立的转向架实体模型的相关参数,最后完成动 力学性能参数的计算并整理结果。
2.结合动力学知识对仿真结果进行计算和分析。
此阶段需要将整理出来的动力学计算 结果的数据、报告进行相应的分析,并结合之前学习的动力学分析的相关知识,对所 有的结果总结说明相关的结论。
3.论文的撰写,修改,打印及装订。
论文的总体框架和大纲的编写(计划 3 天),论文各部分内容资料和图表的整理(计划 3 天),论文各部分文字内容的编写(计划 10 天),论文的整理和排版(计划 1 天),论文的修改(计划 4 天)。
4.准备答辩。
制作答辩 ppt(计划 3 天),准备答辩稿(计划 2 天),进行模拟答辩(计 划 2 天)。

我家在湖北仙桃,几乎最早一批开始封城,最晚一批才解封的城市之一,因此毕设的大部分工作都在疫情封城封路期间完成。如何在疫情期间保持良好的学习状态和生活状态对于毕设而言也就十分重要。
学习方面,在家想要保持很高的学习效率很难,尤其是在经历了期末考试结束后较长时间的松散状态和刚开始寒假的疯玩时期以后,想要重新进入学习的状态简直难上加难。刚开始,我面对20多页的英文文献和陌生的动力学软件完全不知道从哪里下手,每次坐下来学习一会就又累又困,注意力分散,一整天下来几乎没有完成多少实质性的工作,再加上我平时本身就不宅,整天呆在家让身心接近崩溃。后来我尝试着给自己定学习计划和锻炼计划,并每天利用手机软件或者备忘录进行简单的记录和打卡。虽然定下的任务完成不了也是常有的事情,但是每隔一段时间,重新思考一下自己的任务制定是否合理,并不断修改任务,就能够起到很好的自律作用。在坚持了一段时间的“艰难的低效学习”以后,自己就逐渐进入了高效的学习状态。毕设并不给大家限制每天的工作任务,我也没有给自己约束在每天固定的时间里学习,但是每次做一部分工作,我就会竭尽全力完成。因此,在有学习状态的时候,一直工作到深夜十二点也是家常便饭。
另一个方面就是锻炼身体。每天坚持一定量的锻炼能够很好地保持自己一整天的充沛精力。于我而言,运动一直是精神支柱,也是我学习生活以外最重要的一部分。在家锻炼受限于活动场地和是否会影响到周围邻居,但疫情期间网上也出现了很多在家就能够完成的锻炼计划和动作。我自己也会去保存一些在家锻炼身体的视频和图片,自己照着完成每天的训练量。当然,在平时打球的群里,大家也会一起讨论训练方法,并在自己训练以后疯狂嘲讽其他没有训练的人。这种相互的激励,也能够更好地增加运动之后的成就感,激励大家一起找机会锻炼身体。
另外,也有一些关于毕设的干货分享给大家:①论文学习,每看一篇就提炼几句话出来整理到word中,这样十几篇论文看下来,所有比较重要的东西就集中在两三页文档里了,以后参考起来就会更加高效。②阅读外文文献,开始几篇整段整段百度翻译,注意看一句翻译就回过头看该句的英文,几篇之后就会对一些学术名词比较熟悉,接着不用翻译也能够看懂。③软件学习,直接从实例开始学习,跟着做成功一些实例就会对软件的了解大大提升,在很短的时间内就能够了解软件的主要操作。④三维模型的设计,对于很多需要自己设计形状尺寸和装配尺寸的模型,一边在电脑上画,一边在本子上画草图标注尺寸。这样在后续涉及到与之相关联的尺寸时就不用来来回回在电脑上打开文件。建立动力学模型也是一样,记录好相关参数,后面的检查和修改工作就能事半功倍。
最后愿所有大四学子不管身在何处,都能把自己的人生过得精彩纷呈、璀璨夺目!